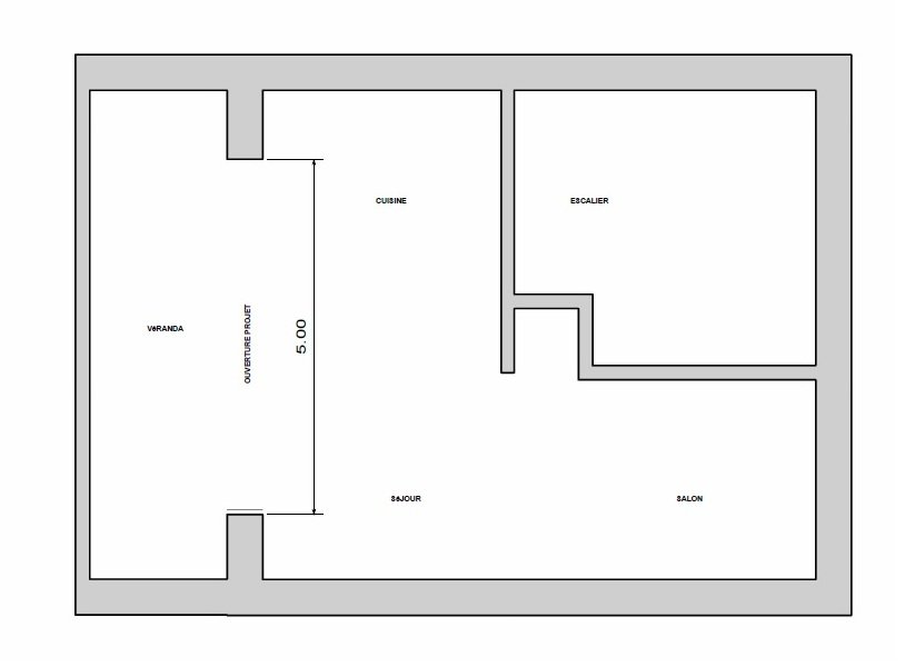
L’objet de ce rapport est le dimensionnement des éléments de reprise en sous-œuvre dans le cadre d’un projet de rénovation d’une maison érigée en R+1. Il s’agit en effet de la création d’une ouverture au rez-de-chaussée d’un mur de façade d’épaisseur 51cm et la création d’une trémie d’escalier reliant le séjour au rez-de-chaussée à l’étage. Le projet est Boulevard François CAMOIN, 13013 Marseille.